Middleby Street Refurbishment

Heritage | Residential

Domestic
Private Client
Edinburgh, UK

Service
Client
Location

Retrofit and whole house improvement of a listed building in Edinburgh
Retrofit and whole house improvement of a listed building in Edinburgh
Retrofit and whole house improvement of a listed building in Edinburgh

Balancing Georgian heritage with a contemporary layout

Retrofit and whole house improvement of a listed building in Edinburgh

Take a step inside

Middleby Street is a fine example of early Georgian architecture in Edinburgh, shaped by the wealth and cultural growth of the merchant port at the time.

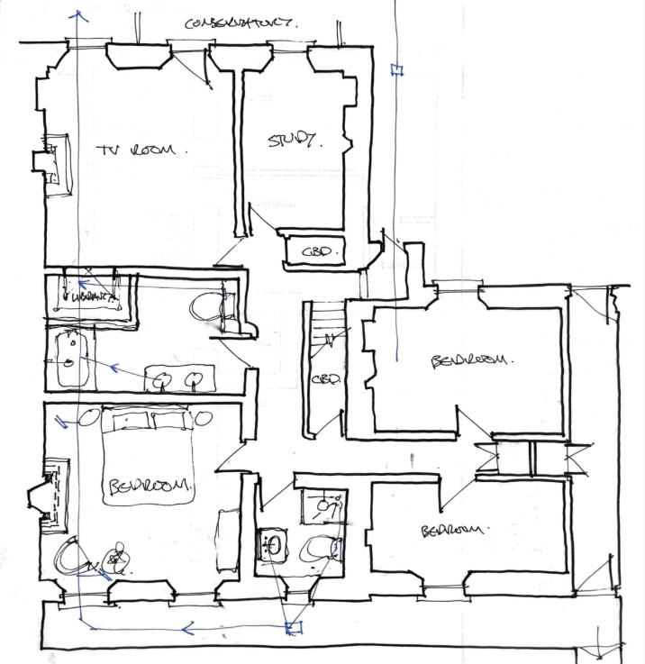
  • In this Category A listed home, our client wanted to open up the ground floor – bringing in more natural light and creating a flexible family space that feels warm and connected.

  • As Middleby Street is a listed building, we had detailed conversations with the planners to reach a final design strategy. Once this was in place, we got to work on a series of internal alterations, starting with the crucial hub – the kitchen. A wall was dismantled to create a seamless connection between the living room and kitchen, opening the space to allow light to flood the room.

  • The reconfigured ground floor now offers a unified, light-filled living space that supports modern family life. By opening the kitchen and living room into a single flowing area, the design brings in natural light and improves functionality while respecting the fabric of the Category A listed building. The home now balances its Georgian heritage with a practical, contemporary layout.

Retrofit and whole house improvement of a listed building in Edinburgh
Previous
Previous

Shaws Street

Next
Next

Trinity Villa Flat