Craiglea Drive

Sustainable Upgrade
Private
South Edinburgh

Residential

Service
Client Location

Sustainable retrofit of a listed heritage building in Edinburgh

Project Background

Constructed between 1882 and 1886, Craiglea Drive forms one of the main east-west arteries through the distinctive grid street pattern of the Plewlands conservation area in Edinburgh. This property is a traditional, terraced stone house typical of the area.

Client’s Brief and Our Approach

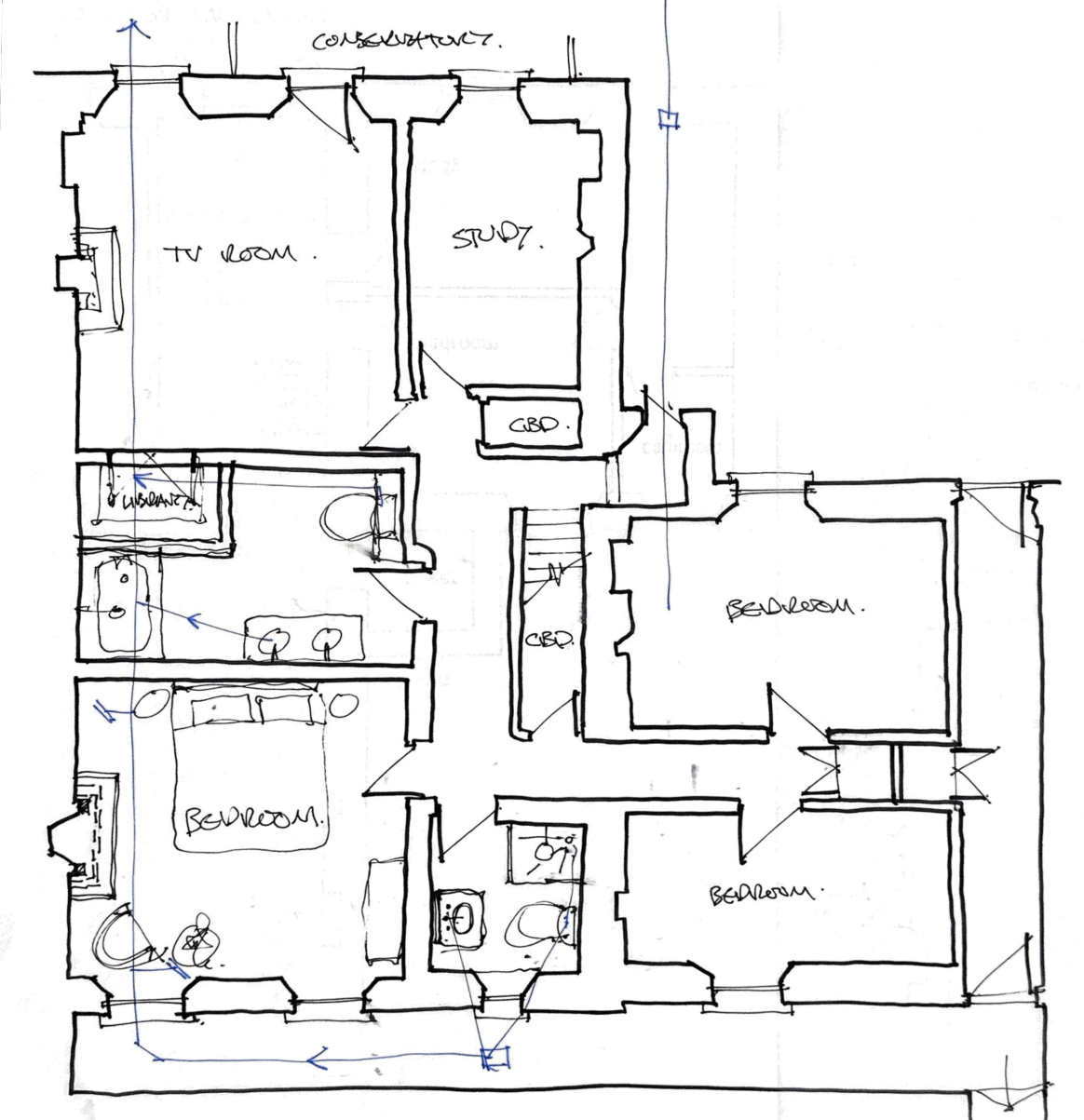
The client sought to reconfigure the rear of their property, where a small, underused extension and a traditional arrangement of kitchen, dining, and living spaces limited functionality. Their aim was to create a more flexible and generous family space with improved natural light. 

We provided a series of options from minimal intervention to maximum to assist the client in a costing exercise following which a preferred option was selected.  

Enlarging the window on one side to a full-height glazed door opening provides easy access to the garden. The large window on the opposite side is replaced and resized, optimizing space for storage while maintaining daylight.  

Sustainable retrofit of a listed heritage building in Edinburgh
Sustainable retrofit of a listed heritage building in Edinburgh

The Result

The proposal creates a contemporary, spacious, family-friendly kitchen and dining area to enhance comfort while modernising the existing amenities.  The dark, cramped utility space is transformed into a cosy snug with views into the garden and flooded with daylight.

Previous
Previous

Joppa Cottage

Next
Next

Capelrig House